- marcizahrada
Prejsť na obsah
Hlavná ponuka:
Úvod
Portfólio
Andezitová záhrada
Trendová záhrada
Záhrada okrasných tráv
Geometrická záhrada
Anglická záhrada
Prímestská záhrada
Veľkoplošná záhrada
Terasová záhrada
Verejná a vyhradená zeleň
Bytová výsadba
Naše služby
Projekt
Realizácia
Údržba
O nás
Kontakt
Naše služby
>
Projekt
1 Pôvodný stav
2 Arch.-sadovnícky návrh
3 Vytyčovací plán
4 Návrh oplotenia
5 Rezy, Rezopohľady
6 Kladačský plán
7 Výkres detailov
8 Návrh zavl. systému
9 Návrh osvetlenia
10 Osadzovací plán
11 Vizualizácia
12 Plán údržby
13 Záhradnícky kalendár
14 Ostatné
Vypracovanie projektu
Ostatné
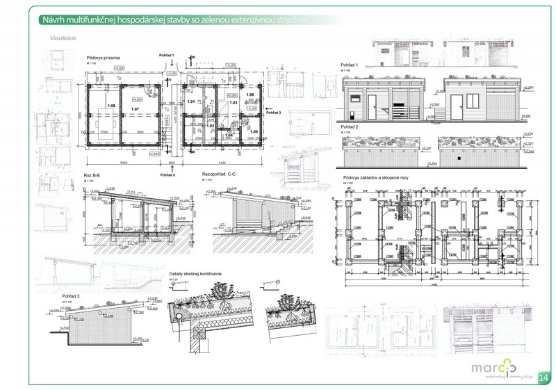
Do tejto časti spadajú všetky menej často navrhované a realizované architektonické prvky, napr. rôzne drobné stavby, koreňové čističky, zelené strechy a pod. Okrajovo sa venujeme aj návrhom interiérov a dizajnových prvkov.
Úvod
|
Portfólio
|
Naše služby
|
O nás
|
Kontakt
|
Hlavná mapa stránky
Návrat na obsah
|
Návrat do hlavnej ponuky
Ak chcete použiť túto webovú stránku, musíte povoliť JavaScript